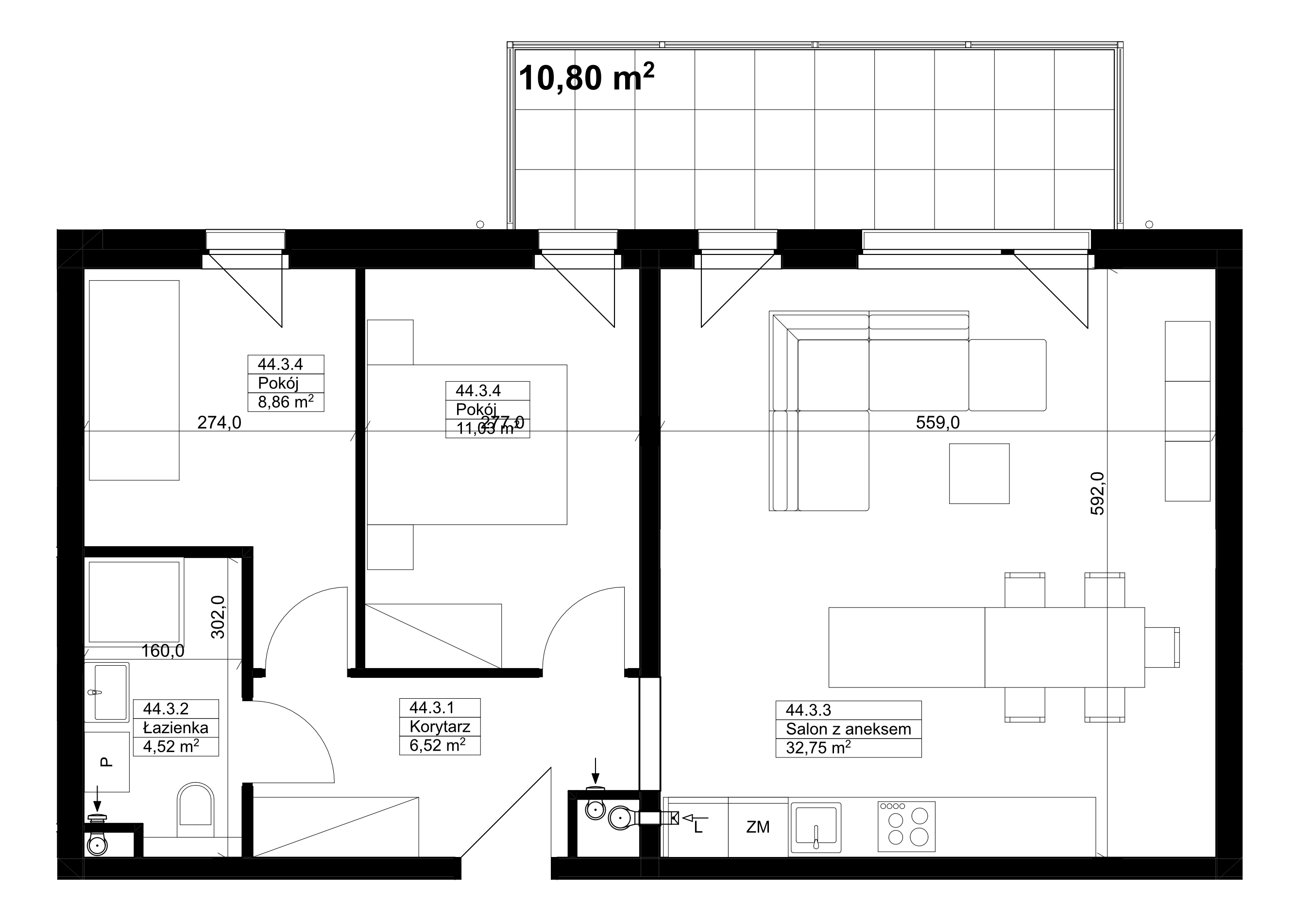
Mieszkanie
A_m.44
Wolne
Mieszkanie
A_m.44
Wolne
Piętro
3
Powierzchnia [m2]
63,68
Pokoje
3
Balkon
1 030 966 zł
16 190 zł / m2
Cena regularna: 1 171 552 zł brutto
Pobierz kartę
Pobierz prospekt informacyjny
Inne świadczenia pieniężne:
Koszty związane z eksploatacją i administracją mieszkania, części wspólnych budynku oraz infrastruktury w okresie deweloperskim.
Zwrot opłaty z tytułu przekształcenia prawa użytkowania wieczystego w prawo własności.
Koszty związane z eksploatacją i administracją mieszkania, części wspólnych budynku oraz infrastruktury w okresie deweloperskim.
Zwrot opłaty z tytułu przekształcenia prawa użytkowania wieczystego w prawo własności.