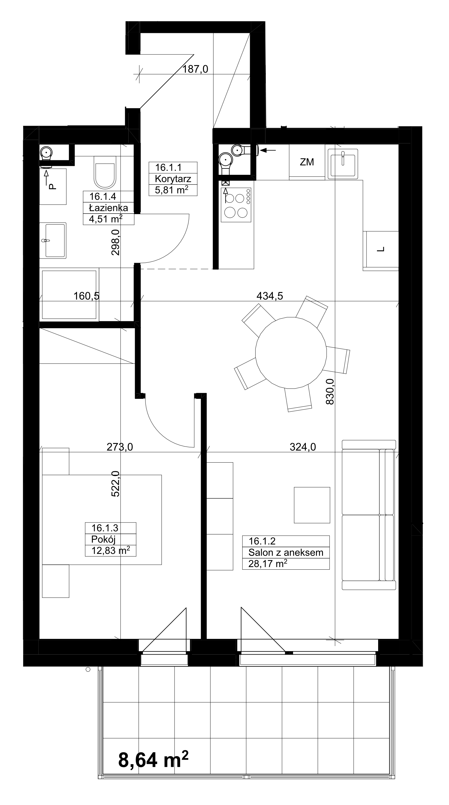
Mieszkanie
A_m.16
Wolne
Mieszkanie
A_m.16
Wolne
Piętro
1
Powierzchnia [m2]
51,32
Pokoje
2
Balkon
666 539 zł
12 988 zł / m2
Cena regularna: 757 431 zł brutto
Pobierz kartę
Pobierz prospekt informacyjny
Inne świadczenia pieniężne:
Koszty związane z eksploatacją i administracją mieszkania, części wspólnych budynku oraz infrastruktury w okresie deweloperskim.
Zwrot opłaty z tytułu przekształcenia prawa użytkowania wieczystego w prawo własności.
Koszty związane z eksploatacją i administracją mieszkania, części wspólnych budynku oraz infrastruktury w okresie deweloperskim.
Zwrot opłaty z tytułu przekształcenia prawa użytkowania wieczystego w prawo własności.